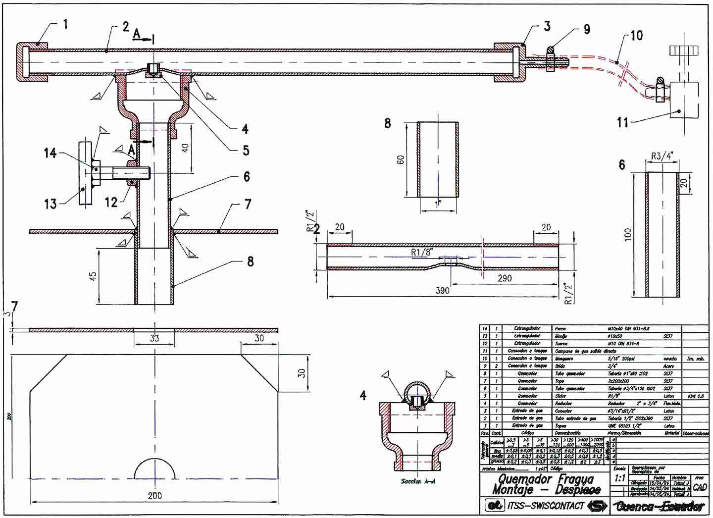
Gasforgedraft Bauanleitung auf deutsch Instrucciones en Espanol Building instructions in English Pictures of forges built with this burner
Go Back